Anklicken zum Vergrößern  

 

Über uns

Energieberatung

Fabrikplanung

Konstruktion

Dienstleistungen

Referenzen

Kontakt

 

IBVU Ing.-Büro für Verfahrens- und Umwelttechnik

| impressum | datenschutz | home |  

 

3D CAD Konstruktion

Die 3D Konstruktion von Anlagenkomponenten kann erfolgt standardmäßig mit dem CAD Programm MicroStation V8i mit den Aufsätzen aus dem TRICAD MS Paket Lackiertechnik*

Die 3D Modelle können als Basis zur Erstellung von Fertigungszeichnungen und Layouts verwendet werden.

* z.B. Fördertechnik, Stahlbau, Elektro, Heizung, Sanitär, Lüftung,


Baugruppenkonstruktion mit MicroStation V8i:

Beispiel UF Modul und Ventilbaugruppe:

Anklicken zum Vergrößern   Anklicken zum Vergrößern  


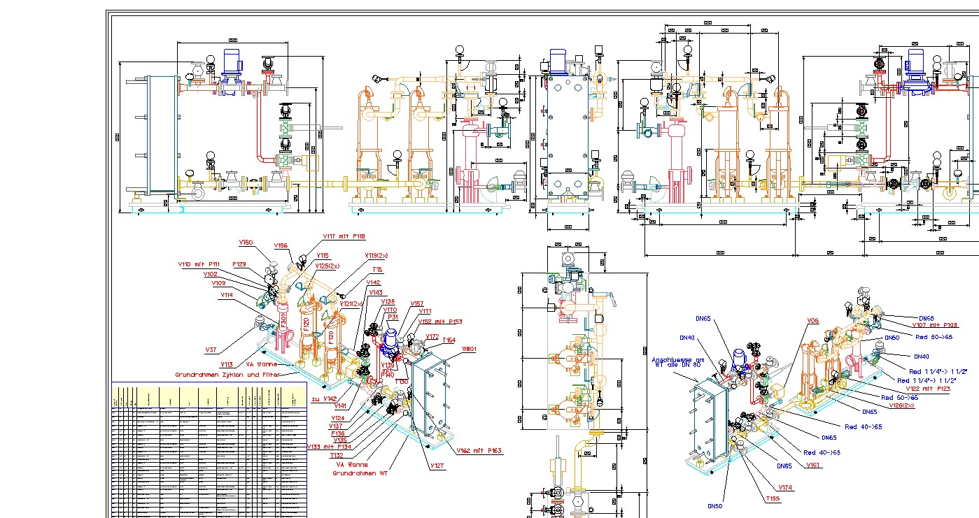
Beispiel Baugruppenkonstruktion WT mit Hydrozyklon mit MicroStation V8i und TriCad Sanitär und Heizung:

Anklicken zum Vergrößern   Anklicken zum Vergrößern  


Beispiel Rohrleitungskonstruktion mit MicroStation V8i und TriCad Sanitär:

Anklicken zum Vergrößern   Anklicken zum Vergrößern  


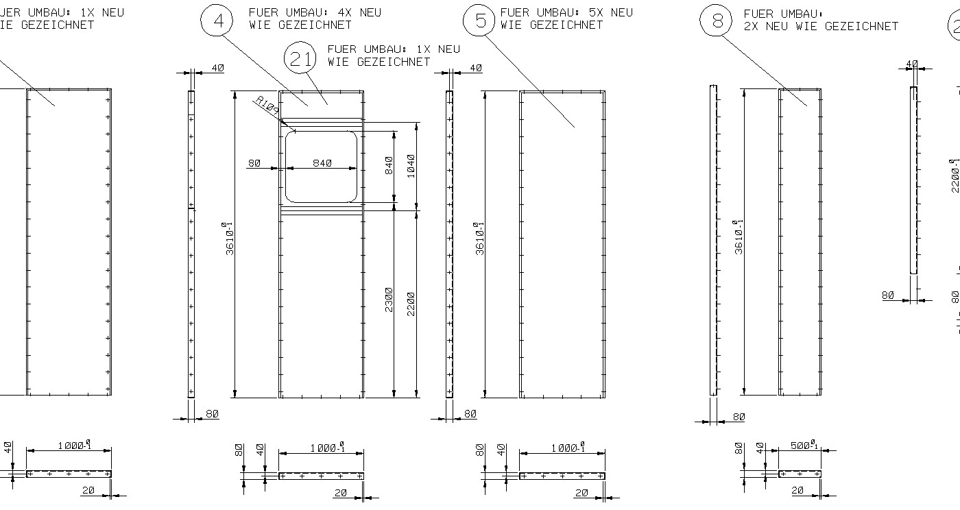
Beispiel Stahlbaukonstruktion mit MicroStation V8i und TriCad Bühne:

Anklicken zum Vergrößern   Anklicken zum Vergrößern  


Beispiel Abluftkanal mit MicroStation V8i und TriCad Lüftung:

Anklicken zum Vergrößern   Anklicken zum Vergrößern  


Beispiel Kabinen Blechkonstruktion mit MicroStation V8i
:

Anklicken zum Vergrößern   Anklicken zum Vergrößern  
 
   

   © 2004-2024 by Ralf Deuter •  info@ibvu.de